Project General Facts概要

AG タワーは、賑やかな大都市の中心部にあるウォーターフロント リビングを再定義する建築の傑作です。29 階建ての堂々とそびえるこの注目すべき開発は、贅沢、優雅さ、モダンな暮らしの証です。静かなウォーターフロント沿いに建ち、緑豊かな公園に囲まれた AG タワーは、居心地の良いスタジオから広々とした 1、2、3 ベッドルームのアパートメントまで、400 を超えるレジデンスのコレクションを提供しています。各レジデンスは、快適さと洗練さの最高基準に合わせて細心の注意を払って設計されています。最初に目を引くのは、街のスカイラインにそびえる AG タワーの威厳ある存在感です。そびえ立つガラスのファサードは、太陽の光で鮮やかに輝き、周囲の水面にきらめく反射を映し出します。このタワーは単なる住宅ビルではありません。贅沢さと洗練さの象徴です。AG タワーに足を踏み入れると、あらゆる角度から息を呑むような景色がすぐに目に飛び込んできます。街の象徴的なスカイラインを眺めたり、近くの自然保護区の静かな美しさに浸ったり、目の前に広がる透き通った海にただただ感嘆したり、その景色は生活空間の不可欠な部分となり、常に変化します。AG タワーは単なる居住地ではありません。人生のより良いものを大切にする人々のための目的地です。贅沢なアメニティ、完璧なデザイン、比類のないロケーションを備えた AG タワーは、優雅な生活の芸術を最高に味わうための招待状です。AG タワーは単なる居住地ではありません。家と呼び、充実した人生の壮大さに浸る場所です。


Finishing and materials仕上げと素材

眺望を美しく引き立てる美しいデザインのタワーは、まさに格別な住宅で構成されています。マスターバスルームには美しいダブルシンク、タイル張りの床と壁、壁付けの化粧台収納、隠し照明付きの鏡が備わっています。リビングエリアの吊り下げ式照明は充実感を醸し出し、キッチンとリビングルームのモダンなタッチは実用性と性能の要点を兼ね備えています。


Kitchen and appliancesキッチンと電化製品

すべての家電製品

Furnishing家具

いいえ

Location description and benefitsロケーション

ビジネス ベイは、この哲学の証です。世界中の他の文化センターと同様に、ビジネス ベイは都市の体現であり、1 か所に凝縮されています。スタイル、グローバル ビジネス、教育、世界クラスのエンターテイメントはすべて、ドバイの未来を再定義する国際的なハブの一部です。AG タワーは、静けさ、つながり、家族や独身者の生活を体現する、排他的で美しく配慮された環境の中で、外界から保護されたプライバシーに重点を置いています。50,000 平方メートルの公園エリア、6.4 km の運河沿岸、20 km を超える専用の自転車、ウォーキング、ジョギング コース、徒歩圏内の水上タクシー、マリン ステーション、フェリー トリップなど、アクティビティの近さと幅広さは驚くべきものです。

International Horizons College 0.1 km
Dubai Mall 4 km
Safa Park 5 km
Medcare Hospital 5.5 km
Jumeirah Beach 6.8 km

設備

  • Swimming pool

  • Fitness centre

  • Restaurants & cafe

  • Play area for children

  • Jogging track

  • Cycling track

Typical units

  • Apartments
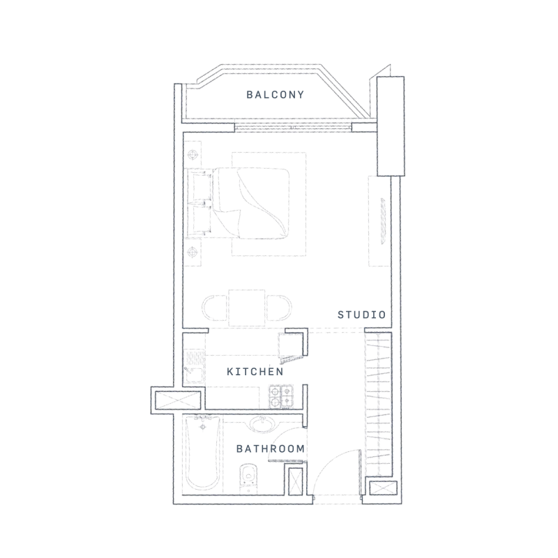
    Studio

    ⾯積 : 42.9907㎡ ̶ 58.5047㎡

  • Apartments
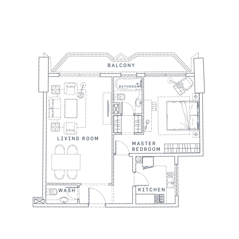
    1 bedroom

    ⾯積 : 81.5888㎡ ̶ 113.178㎡

  • Apartments
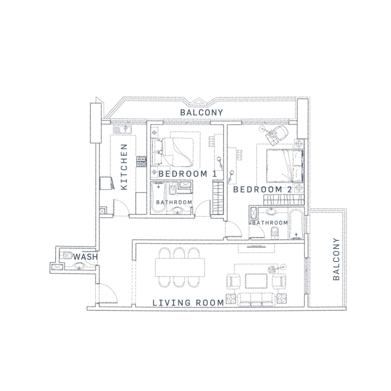
    2 bedroom

    ⾯積 : 128.037㎡ ̶ 154.86㎡

  • Apartments
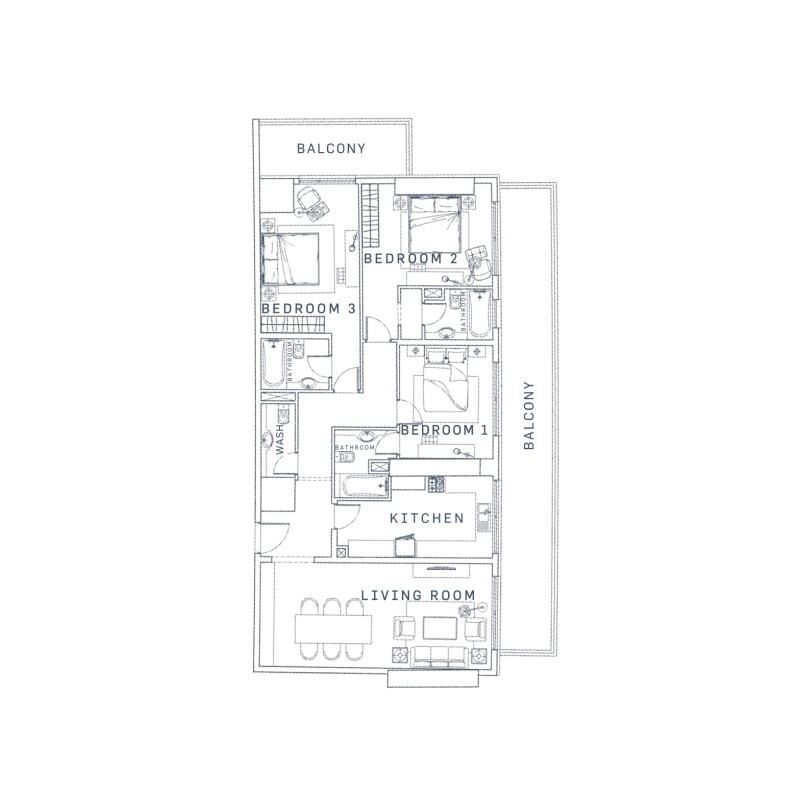
    3 bedroom

    ⾯積 : 160.374㎡ ̶ 192.056㎡

AG Tower

完成予定
2020年

住所
Dubai, Business Bay
ステータス
Out of stock
仕上げと素材
眺望を美しく引き立てる美しいデザインのタワーは、まさに格別な住宅で構成されています。マスターバスルームには美しいダブルシンク、タイル張りの床と壁、壁付けの化粧台収納、隠し照明付きの鏡が備わっています。リビングエリアの吊り下げ式照明は充実感を醸し出し、キッチンとリビングルームのモダンなタッチは実用性と性能の要点を兼ね備えています。