Project General Facts概要

Binghatti Venus プロジェクトは、個々のバルコニーが織り合わされて一体化したコミュニティを形成するという象徴的なデザイン キューを特徴としています。この興味深いパターンは、建物の静的な環境が動的なデザインであるように見えるという錯覚を生み出します。建物のユニークなバルコニー デザインは、居住者が楽しめる屋外スペースを提供すると同時に、建物の居住スペースを冷却するために必要なエネルギー量を大幅に削減する日陰を提供することで持続可能なデザインを保証します。建物は、Binghatti Developers の特徴的な現代的なデザイン スタイルを誇示しながらも、中東の芸術と建築に見られる伝統的な要素も考慮に入れています。建物のユニークなバルコニー デザインは、プライバシーを損なうことなく居住者が楽しめる屋外スペースを提供します。建物の絶好のロケーションは、将来の所有者にとって素晴らしい投資を保証します。


Finishing and materials仕上げと素材

建物全体に贅沢な素材と妥協のない仕上げが施されており、最も著名な国際的サプライヤーによる最高の品質と職人技が表現されています。アパートメント内のすべての備品や設備は、インテリア デザインを完璧に引き立てるように厳選されています。ガラスの引き戸と窓は、最高レベルの環境制御と機能性を維持しながら、内部空間と外部空間の完璧なバランスを生み出します。


Kitchen and appliancesキッチンと電化製品

設備の整ったキッチン

Furnishing家具

いいえ

Location description and benefitsロケーション

ジュメイラ ビレッジ サークルの JReal 不動産は、最も人気のある住宅オプションの 1 つです。潜在的なテナントと投資家の両方に人気があります。この複合施設には、巨大なヴィラ、タウンハウス、スタジオ フラット、高層ビルのマルチ ベッドルーム アパートメントなど、約 2,000 の住宅ユニットが用意されています。まだ建設中の施設もたくさんあります。JVC には、最先端の中層ビルと有名なホテルがあります。プロジェクトの開発業者である Nakheel 社は、生活だけでなく、休息とくつろぎにも快適な空間を作ることを目指しました。3 つの保育園、大学、学校、病院、ショッピング モールがあります。周辺には、遊び場のある緑地や公園が数多くあります。このため、JVC で住宅を貸し出すことは素晴らしいアイデアです。賃貸収入は 6.8% で、アラブ首長国連邦のドバイで最も高い率の 1 つです。居住する住宅やアパートに関係なく、近くに公園があることは間違いありません。面積8km²の小さな団地に33の公園が点在しています。公園の中には、遊び場や木の下のベンチ程度の小さな公園もありますが、サークルコミュニティパークやJVCコミュニティパークなど、完全に緑豊かな公園もあります。あらゆる年齢の人が楽しめる緑地があります。団地にはドッグパークや遊び場があります。ペット歓迎のカフェもあるので、ペットを飼っている人には最適な場所です。

District 13-2 Community Park 0.7 km
Sailkoti Shahzada shadu wela 1.1 km
Tdawi UAE 1.6 km
Sufouh Beach 12.6 km
Downtown Dubai 21.7 km
Dubai International Airport 31.9 km

設備

  • Kids Play Area

  • Swimming Pool

  • Gym

Typical units

  • Apartments
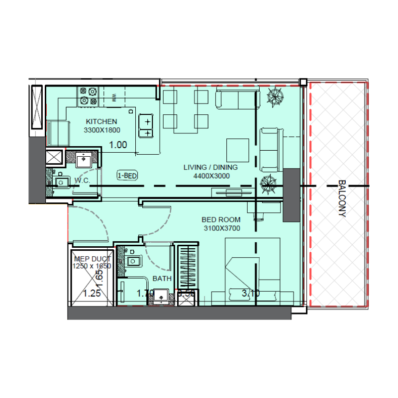
    1 bedroom

    ⾯積 : 57.0093㎡ ̶ 115.607㎡

  • Apartments
    2 bedroom

    ⾯積 : 110.28㎡ ̶ 0㎡

Binghatti Venus

完成予定
2024年

住所
Dubai, Jumeirah Village Circle (JVC)
ステータス
Out of stock
仕上げと素材
建物全体に贅沢な素材と妥協のない仕上げが施されており、最も著名な国際的サプライヤーによる最高の品質と職人技が表現されています。アパートメント内のすべての備品や設備は、インテリア デザインを完璧に引き立てるように厳選されています。ガラスの引き戸と窓は、最高レベルの環境制御と機能性を維持しながら、内部空間と外部空間の完璧なバランスを生み出します。