Project General Facts概要

キャンディス アスターは、洗練さと利便性を体現したエレガントな住宅開発です。このプロジェクトでは、160 戸のスタジオ、58 戸の 1 ベッドルーム アパートメント、9 戸の 2 ベッドルーム アパートメントの多様なセレクションを提供しており、居住者は個人の好みやニーズに合わせてさまざまな選択肢を利用できます。キャンディス アスターのアパートメントは、細部にまでこだわり、現代的な美学に重点を置いて設計されています。スタイリッシュな仕上げと考え抜かれたレイアウトにより、これらの住宅は快適で居心地の良い生活環境を提供します。居心地の良いスタジオでも、広々とした 2 ベッドルーム アパートメントでも、各ユニットは居住者にモダンでスタイリッシュな隠れ家を提供します。キャンディス アスターは、個人や家族が洗練された便利なライフスタイルを体験する機会を提供します。多様なアパートメントの選択肢、スタイリッシュなインテリア、さまざまなアメニティへの近さを備えたこの開発は、快適さ、優雅さ、実用性の調和のとれた組み合わせを提供します。居住者はキャンディス アスターでモダンで充実した生活体験を楽しむことができます。


Finishing and materials仕上げと素材

高品質の素材


Kitchen and appliancesキッチンと電化製品

高級家電製品とバスルーム備品

Furnishing家具

いいえ

Location description and benefitsロケーション

アル・フルジャンは、居住者に高い生活水準とさまざまなアメニティや施設を提供する、モダンで活気のある住宅コミュニティです。このコミュニティはドバイ南部、ジュベル・アリ・フリーゾーンとドバイ・エキスポ 2020 会場の近くに位置しています。シェイク・ザイード・ロードやドバイ・メトロなどの主要高速道路に近い便利な場所にあり、市内の他の地域へのアクセスも簡単です。このコミュニティは、公園、コミュニティ センター、プール、スポーツ コートなどのさまざまなアメニティや施設を備え、居住者に快適で贅沢なライフスタイルを提供するように設計されています。アル・フルジャンのユニークな特徴の 1 つは、緑地を重視していることで、コミュニティ全体に公園や美しい景観が広がっています。コミュニティ内には数多くの小売店やレストランもあり、居住者は買い物や食事のオプションに簡単にアクセスできます。

The Pavilion - Al Furjan 1.5 km
Arcadia Global School 3.4 km
Al Furjan Zone P Kids Park 3.7 km
Marina Beach 9.5 km
Al Maktoum International Airport 28.3 km
Downtown Dubai 35.3 km

設備

  • Gym

  • Swimming pool

Typical units

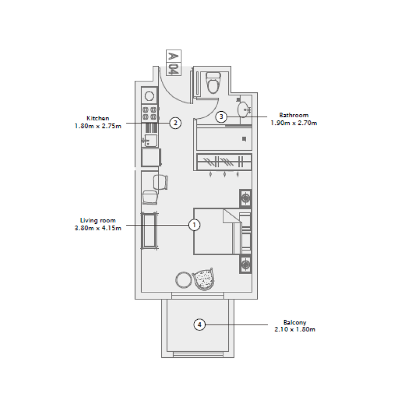
  • Apartments
    Studio

    ⾯積 : 0㎡ ̶ 0㎡

  • Apartments
    1 bedroom

    ⾯積 : 70.6542㎡ ̶ 145.14㎡

  • Apartments
    2 bedroom

    ⾯積 : 106.262㎡ ̶ 0㎡

Candace Aster

完成予定
2017年

住所
Dubai, Al Furjan
ステータス
Last units
仕上げと素材
高品質の素材